Regionalia
Donaueschingen
Samstag, 18. April 2026
ISSN 2698-6949
www.Regionalia.de/donaueschingen
Zeitungen+Fernsehen für freies Wissen und wahre Information

Leser-Optionen

Artikel vorschlagen

NEU: 1-Klick Abo

Benutzer-Optionen

Services

Fremde Anzeigen

Bild/Video Detailansicht:

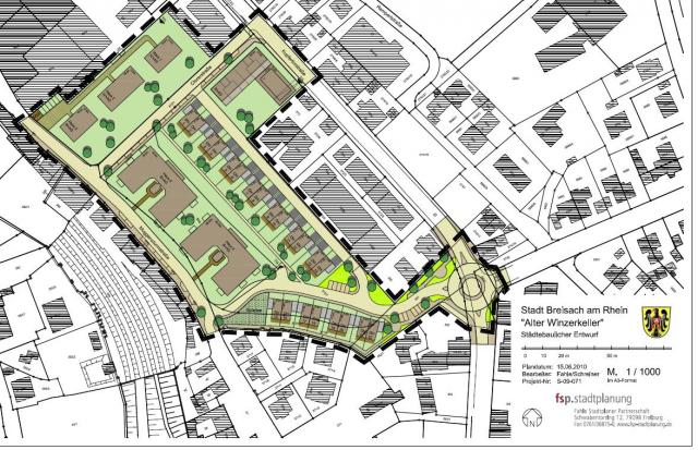
Neue Bebauung auf dem zwischen Muggensturm- und Kupfertorstraße

Bild: Fahle Stadtplaner

 

Artikel, in denen dieses Bild verwendet wird
Titel Artikel-Nr. Anlegedatum
Transparent und voll im Plan - Abbrucharbeiten „Alter Winzerkeller“ haben begonnen  2977  10.09.2010 

© 2009-2025 Regionalia – Regionale Online-Nachrichten – Zeitungen+Fernsehen für freies Wissen und wahre InformationImpressum & Datenschutzerklärung

de 18.04.2026 08:15:12
Ihre IP-Adresse: 216.73.217.42