Regionalia
Freiburg
Montag, 20. April 2026
ISSN 2698-6949
www.Regionalia.de/freiburg
Zeitungen+Fernsehen für freies Wissen und wahre Information

Leser-Optionen

Artikel vorschlagen

NEU: 1-Klick Abo

Benutzer-Optionen

Services

Fremde Anzeigen

Bild/Video Detailansicht:

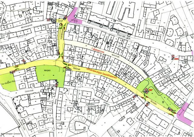
Bei Gelb wird´s gemütlich: Geplante verkehrsberuhigte Geschäftszone in der Rheinstraße

Bild: Stadt Breisach

 

Artikel, in denen dieses Bild verwendet wird
Titel Artikel-Nr. Anlegedatum
Versuch macht klug! – Rheinstraße wird verkehrsberuhigt  4189  20.04.2011 

© 2009-2025 Regionalia – Regionale Online-Nachrichten – Zeitungen+Fernsehen für freies Wissen und wahre InformationImpressum & Datenschutzerklärung

de 20.04.2026 06:16:01
Ihre IP-Adresse: 216.73.217.42